//
项目位于四川省成都高新区中和街道,西临龙湖九里晴川、雅和南四路,东临新川时代中心、雅和南五路。距离成都双流机场约14KM,位于成都高新区新川科技园区,是成都未来产业发展的核心区域,周边教育资源丰富,从幼儿园到初中,全站教育资源围绕,多个已建以及在建的住宅小区,同时建设有创新科技园区,天府新区省级文化中心,以及多个总部基地项目,新川公园,以及地块周边的公园绿地等景观资源加持,生活配套基础建设较为完善。地块总用地面积17452.90平方米,由6栋住宅塔楼、城市会客厅(兼小区主入口)及小区次入口组成,其中1#、2#、3#、4#、5#、6#楼均为17层。其中1#、2#、6#楼一层为架空层,架空层面积1163.08平方米。
入户大堂设计:打造地上地下双入户大堂,地上以至臻归家礼遇,尊享从容生活为设计理念,为居住者构建尊贵臻尚的入户体验,展示美学理念的视觉享受;精装首层入户大堂,背景墙采用奢华岩板,内嵌古铜金属线条,改变传统入户门厅狭窄局面,打造明亮通透的入户空间。


地下车库设计:以打造“劳斯莱斯同款”星空车马厅,让整个空间更加有趣,更能提高整体的奢华感受;装修风格延续地上大堂风格,墙面采用柔抛面瓷砖和岩板铺贴;

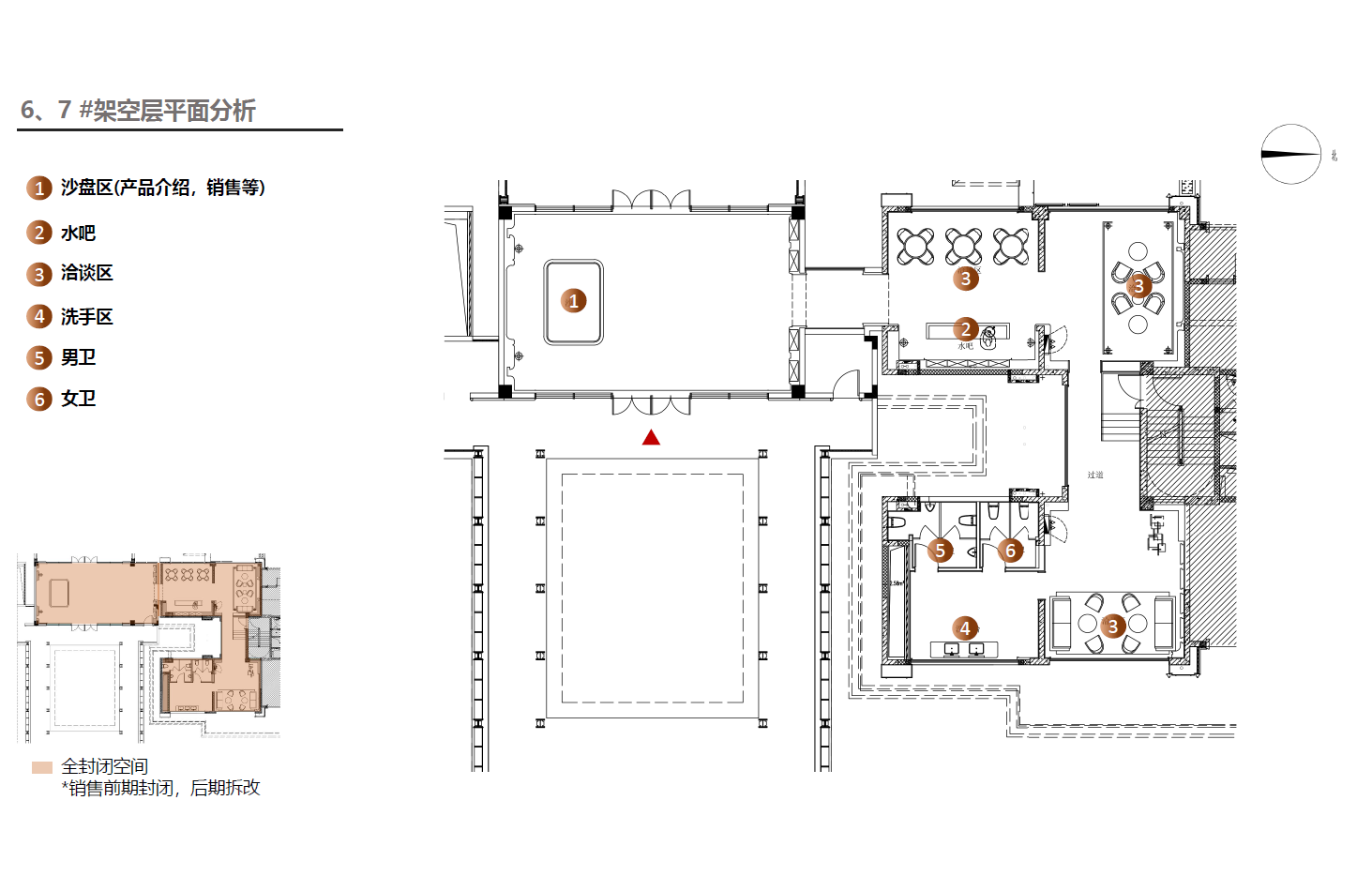
架空层设计:以“全龄社区”为出发点,将架空层设计为容纳多元生活的社区中心,成为一个集合休闲、亲子、社交等复合功能为一体的生活美学空间。架空层空间是社区理想的室内与室外的过渡空间,作为灰色空间既开放又私密。社区型、全龄化、共享互动、人文情怀等流行趋势,极大提升了社区的居住品质,使现代社区更加宜居、温馨、多元与关怀。




去风格化,打破固化风格的局限
户型设计:提出“去风格化,打破固化风格的局限。”摆脱千篇一律的风格,以形式、符号、色彩、材质进行重组,打造符合客群个性的舒适空间。硬装上以现代简练的线条贯穿空间,摒弃复杂的造型,为空间提供明亮通透的秩序感,软装上风格碰撞、形态多元,在功能合理化下兼具空间情调。





各户型设计优势;
A户型设计优势:“LDKB+X"方厅,公区联动,多重生活场景,高频次家庭互动,打破空间局限性,不仅视觉上提升室内空间的通透感,也赋予了空间更多的使用功能,满足居住的多种可能,丰富家庭场景体验。
B户型设计优势:时尚横厅,空间感开阔,采光通风佳,布局灵活,拥有多功能X空间,可做书房,工作间,女神化妆室,儿童房或陪读房。
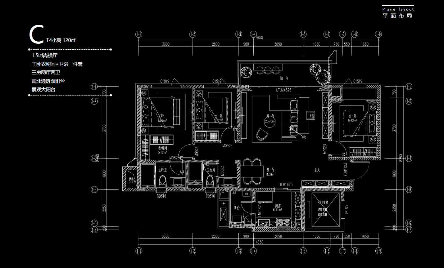
C户型设计优势:1.5时尚横厅,空间感开阔,采光通风佳,布局灵活,横厅中的开放式书房在实际使用过程中有许多可变性,空间可以根据自己的生活需求,进行灵活布置。
D户型设计优势:创新1.5卫,三分离卫生间,干湿分离,提高卫生间利用率,卫生间不仅设计了2个马桶,而且将台盆设计在公共开放空间中,两边上厕所出来都能用到;同时满足2人上厕所+1人洗漱,3人早起出门的生活场景。
E户型设计优势:全南竖厅,动静分区,使得功能分区更加明确,互相的干扰大大减少;创新1.5卫,三分离卫生间,干湿分离,提高卫生间利用率;灵活多变X空间,所谓“X”空间,就是打破常规家庭的固定场景模式,可以灵活使用,安放爱好的趣味空间,演绎多变的生活场景,满足更多样的生活需求。



客户 :成都高投置业有限公司
建筑面积 :66101.17㎡
建成日期 :2025
HZS服务 :室内设计
获奖